


Listing Courtesy of: MichRic / ERA Reardon Realty Great Lakes / Ryder Storms / Amy Postma
406 Vienna Lane Fremont, MI 49412
Active (74 Days)
$379,500 (USD)
Description
MLS #:
26006069
26006069
Taxes
$214
$214
Lot Size
1,249 SQFT
1,249 SQFT
Type
Single-Family Home
Single-Family Home
Year Built
2026
2026
County
Newaygo County
Newaygo County
Listed By
Ryder Storms, ERA Reardon Realty Great Lakes
Amy Postma, ERA Reardon Realty Great Lakes
Amy Postma, ERA Reardon Realty Great Lakes
Source
MichRic
Last checked May 4 2026 at 3:45 PM GMT+0000
MichRic
Last checked May 4 2026 at 3:45 PM GMT+0000
Bathroom Details
- Full Bathrooms: 2
Interior Features
- Dishwasher
- Microwave
- Refrigerator Garage Door Opener
- Eat-In Kitchen
- Pantry
- Center Island
Heating and Cooling
- Forced Air
- Central Air
Basement Information
- Crawl Space
Homeowners Association Information
- Dues: $135
Exterior Features
- Vinyl Siding
- Stone
- Stucco
Utility Information
- Sewer: Public
Garage
- Attached Garage
Parking
- Attached
Stories
- 1.00000000
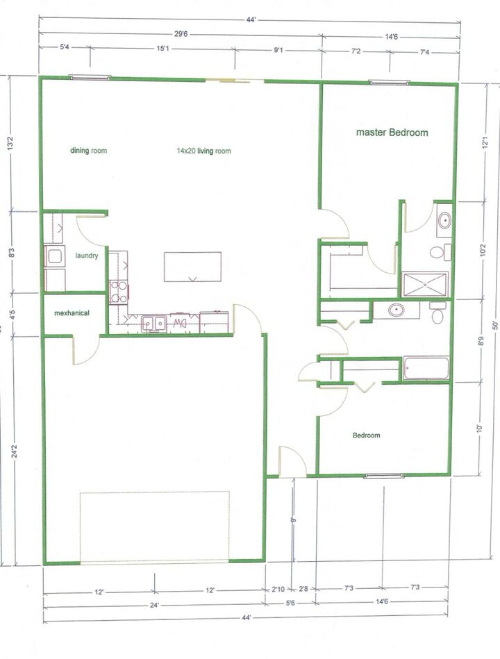
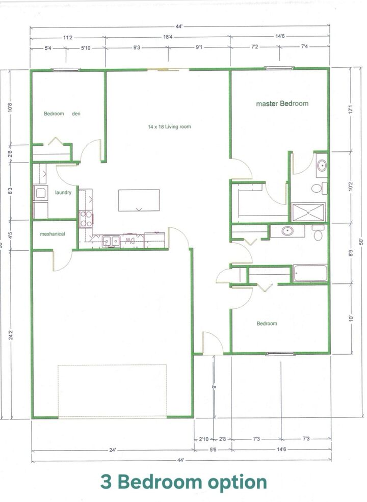
Living Area
- 1,500 sqft
Location
Disclaimer: Copyright 2026 Michigan Regional Information Center (MichRIC). All rights reserved. This information is deemed reliable, but not guaranteed. The information being provided is for consumers’ personal, non-commercial use and may not be used for any purpose other than to identify prospective properties consumers may be interested in purchasing. Data last updated 5/4/26 08:45
Inside, the home offers a functional, well planned layout with quality finishes throughout. Buyers will appreciate the opportunity to personalize selections and create a space that reflects their individual style.
The exterior complements the home with attractive curb appeal and outdoor space to enjoy. Experience the benefits of brand new construction in a beautiful golf course community setting.